Seçilmiş Projeler

C.E.T. MAKRİKÖY

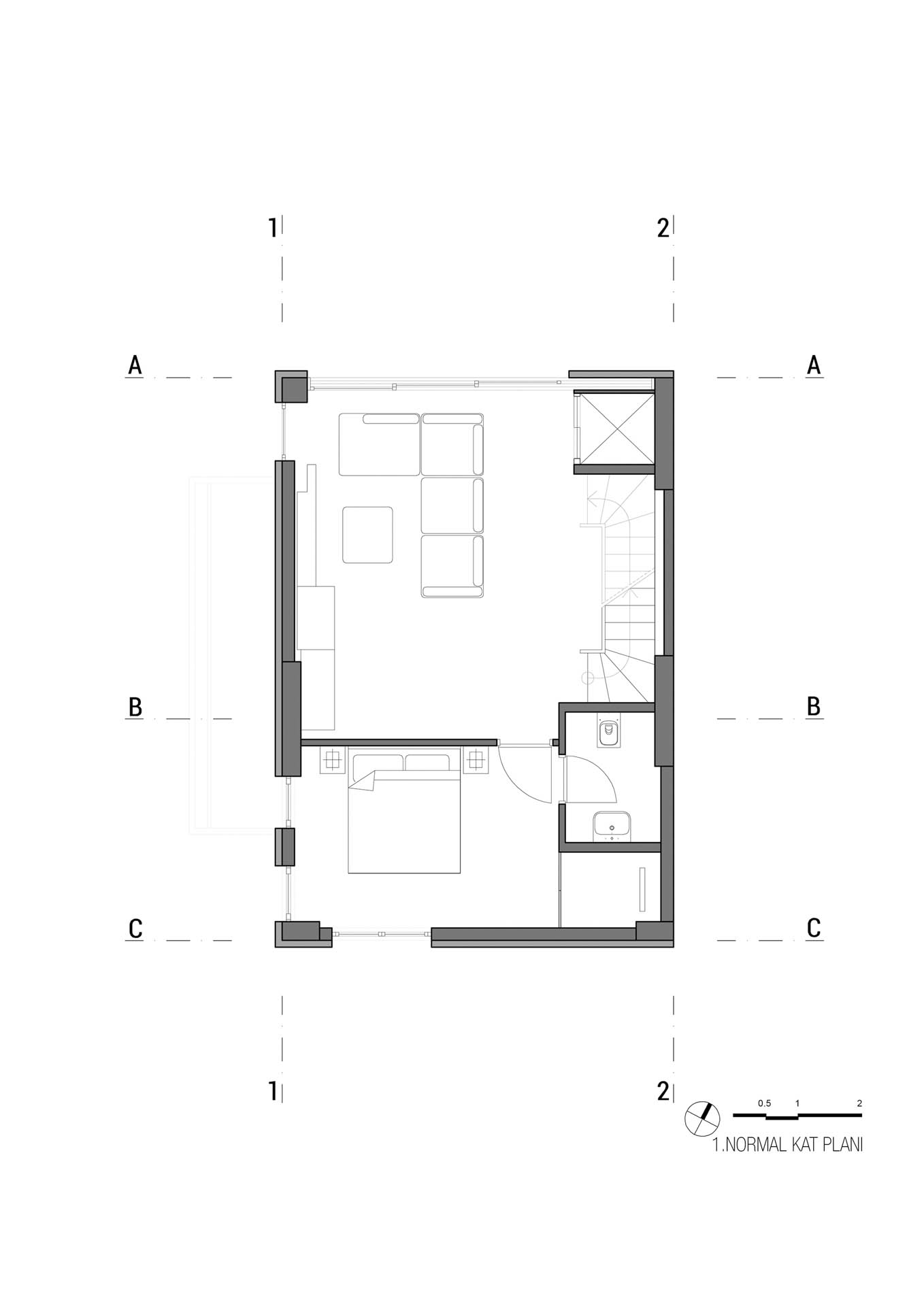
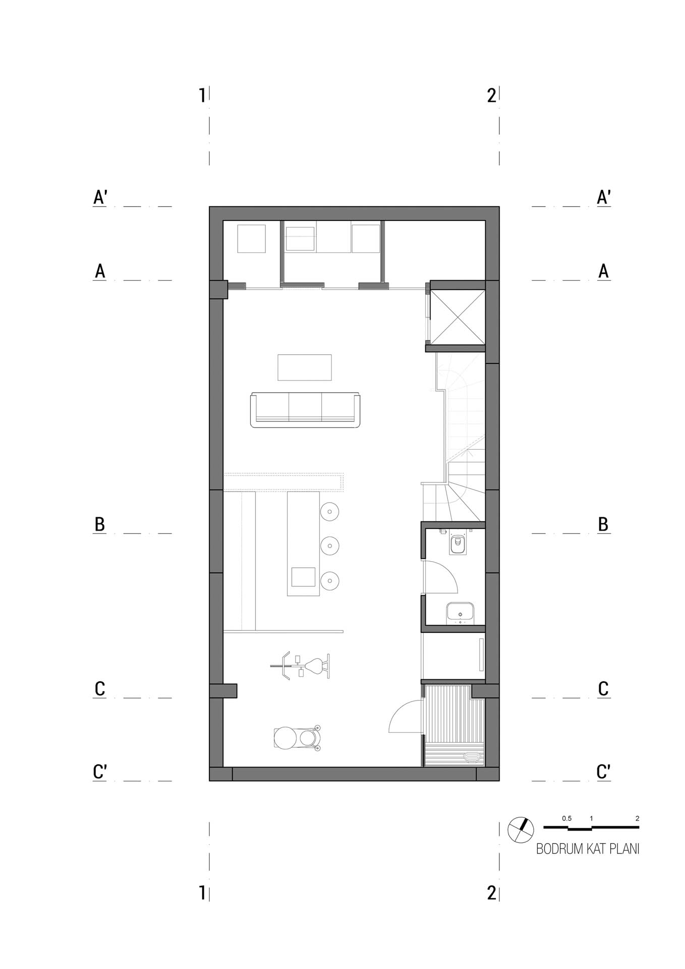
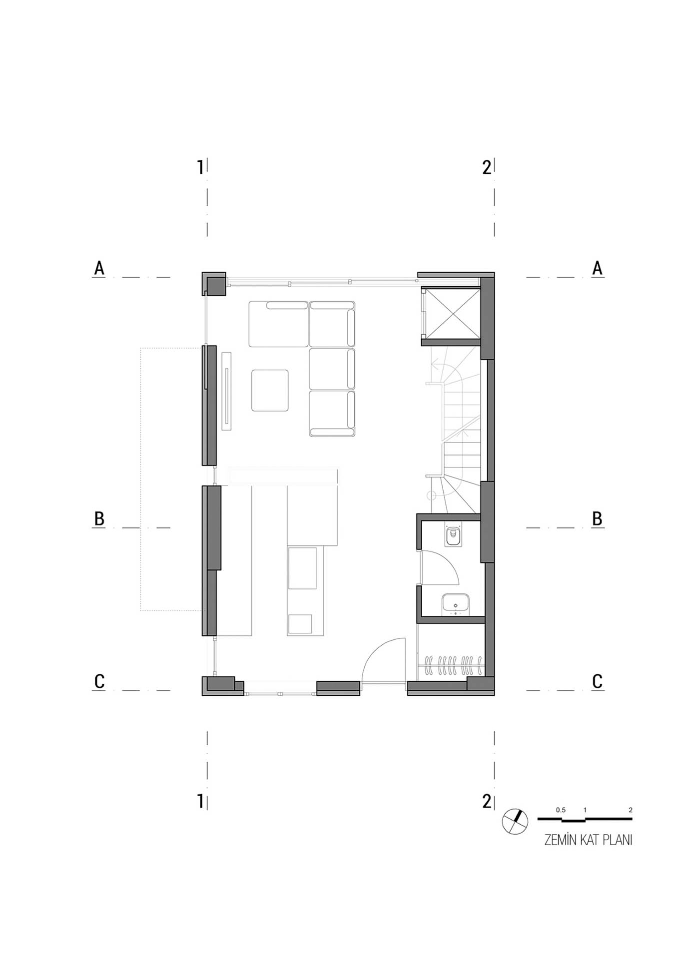
C.E.T. Makriköy konut projesi, İstanbul Bakırköy'de, Florya Atatürk Ormanı'na komşu, üç katlı sıra evlerden oluşan yapı bloklarından birinin köşesinde yer alır. Zaman içerisinde ortak mimari dilini yitirmiş sıra evler, bununla birlikte kendi aralarındaki sınır ortaklığını büyük ölçüde sürdürmektedir. Tam da bu nedenle yapının komşu sınırlarını (ön ve arka bahçe mesafeleri ve çatı yüksekliği, kat hizaları) korumak projenin en temel tasarım girdisini oluşturmuş; yapının özgün formu, bu çok belirgin ve tanımlı çevresel sınırlar içerisinde üretilmiştir. Yapı, yırtıklar ve açıklıklar aracılığıyla yönetilen, mekânlar arası bağlantısallık ve görsel geçirgenlik fikrine temellenir. Böylelikle farklı kotlar ve iç-dış mekân arasındaki eşikler öncelikle görsel olarak aşılmış olur. Birbirini takip eden cephe ve döşeme yırtıkları, iç mekândaki görüş yönünü değiştirir. Zemin katta bulunan dar cephe açıklığını karşılayan döşeme yırtığı, bodrum katın gökyüzü ve zemin kat ile ilişkisini kurar; çatı kabuğundan cepheye doğru inen saydamlık ise panoramik bir kent-gökyüzü manzarası sağlar. Arka bahçeye bakan cephede kullanılan sürgülü doğramalar, üç katta da duvar içine gizlenerek açılır; böylece doğramalar açıldığında, dış mekân, bahçede yer alan çok yıllık çamlar ve peyzaj, iç mekânın kullanım alanını tam ve kesintisiz karşılar. Açıklıkların formu ve yerleşimleri, manzarayı çerçeveler. İç ve dış mekân arasındaki eşikler bir yandan görsel olarak, diğer yandan gizlenen ve tam olarak açılan doğramalar ve mekânsallaşan merdivenlerle fiziksel olarak da aşılır. Sokak ve giriş arasındaki kot farkı, verandadan sokağa dek uzanan basamaklar, basamakları karşılayan ve iki yana 180 derece dönen doğrama, bölüntüsüz kat planı ve arka verandaya eşiksiz açılarak gizlenen doğrama üzerinden geliştirilen mekânsal yaklaşım, sokak ve arka bahçe arasında kurulacak derin bir bağlantıyı ve kesintisiz bir akışı olanaklı kılar. Bu derinlik içinde farklı işlevler sahip mekânlar birbiri ardına dizilir. Mekân organizasyonunda, sirkülasyon elemanları, tuvalet ve banyo hacimleri bitişik komşu yönünde doğrusal olarak dizilir. Bu kurgu, birincil fonksiyonlar için net ve esnek bir alan bırakmış olur. Öte yandan farklı kotlar, farklı kullanıcıları hedefleyen işlevlere göre biçimlenir. Giriş ve bodrum kat, ev sahibinin misafirlerini ağırlama ve eğlence aktivitelerine, üst katlar ise yatak odalarının bulunduğu özelleşmiş alanlara ayrılır. Yapının mekânsal kurgusundaki bütün işlevsel bölümlenmeler, misafirlerin kullanımına ayrılmış olan yatak odası dışında, çatı yüksekliği, cam ya da boşluklu metal düşey bölücüler ve yırtıklar gibi geçirgen sınırlarla tanımlanır. İç ve dış mekân, tümevarım ve tümdengelim, dolayımlanmış bir ilişki içinde üretilmiştir. Proje alanında var olan çok yıllık çam ve zeytin ağaçları korunarak oluşturulan peyzaj, cephe kararlarını, yapısal düzenlemeler ise peyzaj kararlarını karşılıklı etkilemiştir. Veranda ile bahçeyi ve sokağı bağlayan basamaklar, peyzaj ile birlikte tasarlanmış, arka verandada bahçeye ulaşımda köşeyi tutan basamaklarla, arka ve yan bahçe algısı yerine bütüncül bir alan algısı amaçlanmıştır. Basamaklarla hem sirkülasyon hem de oturma olanağı sağlanmış, dış mekânda kullanıcının önceliklerinden biri olan kalabalık buluşmalara izin veren esnek bir diyalog ortamı oluşturulmuştur. Ön ve arka veranda, bir dış koridorla birbirine bağlanmış, üzerindeki örtü de bu bağlantı izini üst kotta tarif etmiştir.

PROJE KÜNYESİ
Konum: Florya, İstanbul
Tarih: 2023
İşveren: Cihan Metiner
Arsa: 365 m2
İnşaat: 235 m2
Durum: Tamamlandı
KONUM